Твердотопливный котел своими руками — чертежи
Твердотопливный котел своими руками — чертежи
Что я подразумеваю, когда говорю про качество чертежей, да и документации по котлам вообще? Во-первых, документация должна быть составлена инженером, причем, профильным. А не «кулибиным» из местного гаража.
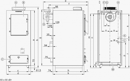
Во-вторых, собирая пиролизный твердотопливный котел своими руками, чертежи вы будете использовать не только для сборки, но и для подбора материала. А это значит, что к каждому чертежному листу у вас должна быть спецификация на деталь.
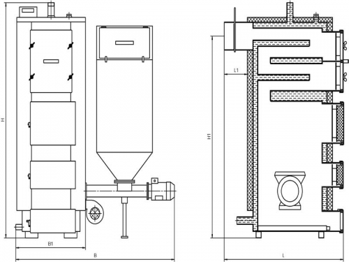
Собирая же обычный твердотопливник на дровах или угле, можно, и даже нужно, использовать самые простые схемы. Почему? Потому что усложнение в этом вопросе больше вредит, чем помогает.
Взять хотя бы использование теплообменника, упомянутого выше. Чем проще вы используете схему, тем проще становится сварка и сборка котла. И дешевле. А то, что вы с одним теплообменником получите на 10 процентов больше КПД, чем с другим, право не важно.
Почему? Да потому что этот показатель будет нивелирован, например, бесплатностью топлива. И вместо того, чтобы неделю тратить на изучение чертежей и документации, а потом месяц вываривать теплообменник сложной конфигурации, лучше поищите условно-бесплатные дрова.
Съездите на ближайшие лесопилки, договоритесь с мебельным производством, начните забирать отходы упаковки со складов. И вы увидите, что вам простой твердотопливный котел даст в этой ситуации большую фору самому продвинутому и насыщенному электроникой пиролизнику или пеллетнику. 








